takeofficeなら掲載物件の仲介手数料は無料です

lamroN仙台

住所 宮城県仙台市青葉区中央4-9-5
交通 JR常磐線仙台」 徒歩5分
竣工 2026年01月 構造 鉄骨造
規模 地上7階 耐震基準 新耐震基準
床構造 フリーアクセス 60mm 空調設備 -
天井高 2700mm 基準階面積 106.38坪(351.67m2)
コンセント容量 - 施工会社 松井建設
坪面積 用途 賃料 坪単価 共益費 入居可能日
2 106.38坪 事務所 相談 相談 相談 2026年1月下旬
3 106.38坪 事務所 相談 相談 相談 2026年1月下旬
4 106.38坪 事務所 相談 相談 相談 2026年1月下旬
5 106.38坪 事務所 相談 相談 相談 2026年1月下旬
6 106.38坪 事務所 相談 相談 相談 2026年1月下旬
7 106.38坪 事務所 相談 相談 相談 2026年1月下旬
lamroN仙台 外観

外観

  • lamroN仙台 エントランス写真

    エントランス

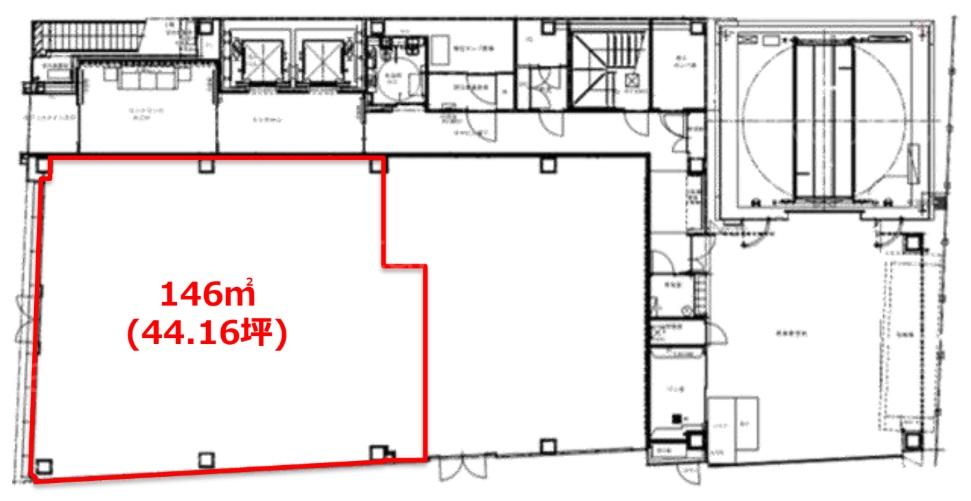
  • 基準階(2~7F)

    基準階(2~7F)

  • 1F

    1F

内見やお見積りなどの各種お問い合わせ

全物件
仲介手数料無料
仲介から
入居工事まで
ワンストップで対応
経験豊富なスタッフが
スピード感をもって
対応

※「ご相談」と記載されている項目について
賃貸人が募集賃料条件を守秘義務の関係から明示していない場合に、【ご相談】と記載しております。
フリーレント(賃料免除)期間、使用面積、入居時期、テナント様の与信などによりご提示できる条件が若干変化いたします。
お手数ですが、詳細につきましては、上記よりお問い合わせください。

周辺での似た条件の物件

非公開物件 多数あり!

お問い合わせフォーム