takeofficeなら掲載物件の仲介手数料は無料です

VORT末広町

住所 東京都千代田区外神田6-14-7
交通 東京メトロ銀座線末広町」 徒歩1分
東京メトロ千代田線湯島」 徒歩6分
JR山手線御徒町」 徒歩7分
竣工 2002年10月 構造 SRC
規模 地上9階, 地下1階 耐震基準 新耐震基準
床構造 フリーアクセス 空調設備 個別空調
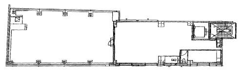
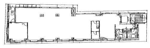
天井高 2600mm 基準階面積 64.44坪(213.02m2)
コンセント容量 - 施工会社

最新の募集状況や類似物件については、
こちらにお問い合わせください。

VORT末広町 外観

外観

内見やお見積りなどの各種お問い合わせ

全物件
仲介手数料無料
仲介から
入居工事まで
ワンストップで対応
経験豊富なスタッフが
スピード感をもって
対応

周辺での似た条件の物件

非公開物件 多数あり!

お問い合わせフォーム