takeofficeなら掲載物件の仲介手数料は無料です

上野ビル

住所 東京都千代田区鍛冶町2-6-2
交通 JR山手線神田」 徒歩1分
東京メトロ銀座線神田」 徒歩1分
JR総武線(快速)新日本橋」 徒歩6分
竣工 1966年05月 構造 SRC
規模 地上9階, 地下1階 耐震基準 新耐震基準
床構造 フリーアクセス 50mm 空調設備 個別空調
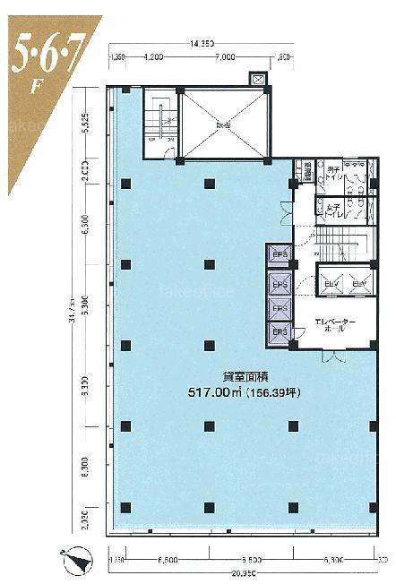
天井高 2430mm 基準階面積 155.75坪(514.88m2)
コンセント容量 30VA/m2 施工会社

最新の募集状況や類似物件については、
こちらにお問い合わせください。

上野ビル 外観

外観

  • 上野ビル エントランス写真

    エントランス

  • 基準階

    基準階

建物パンフレット

建物パンフレットは作成時点のものであり、また計画段階のものも含まれる為、実際とは異なる場合がございます。

内見やお見積りなどの各種お問い合わせ

全物件
仲介手数料無料
仲介から
入居工事まで
ワンストップで対応
経験豊富なスタッフが
スピード感をもって
対応

周辺での似た条件の物件

非公開物件 多数あり!

お問い合わせフォーム