takeofficeなら掲載物件の仲介手数料は無料です

四国ビル

住所 東京都千代田区内神田1-13-7
交通 都営三田線水道橋」 徒歩4分
都営新宿線小川町」 徒歩4分
東京メトロ丸ノ内線淡路町」 徒歩5分
竣工 1964年08月 構造 SRC
規模 地上9階, 地下3階 耐震基準 新耐震基準
床構造 フリーアクセス 50mm 空調設備 個別空調
天井高 2470mm 基準階面積 107坪(353m2)
コンセント容量 - 施工会社

最新の募集状況や類似物件については、
こちらにお問い合わせください。

四国ビル 外観

外観

  • NOW PRINTING

    エントランス

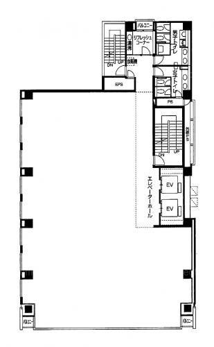
  • 基準階(3~7F)

    基準階(3~7F)

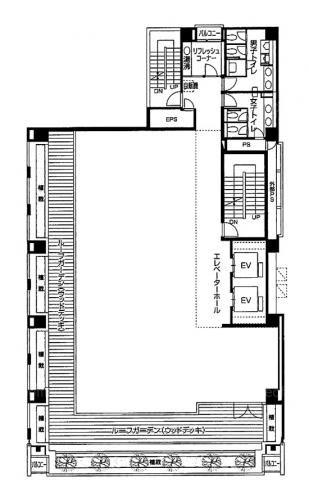
  • 1F

    1F

  • 2F

    2F

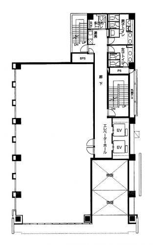
  • 8F

    8F

内見やお見積りなどの各種お問い合わせ

全物件
仲介手数料無料
仲介から
入居工事まで
ワンストップで対応
経験豊富なスタッフが
スピード感をもって
対応

周辺での似た条件の物件

非公開物件 多数あり!

お問い合わせフォーム