takeofficeなら掲載物件の仲介手数料は無料です

C-5ビル

住所 東京都千代田区神田須田町1-21-5
交通 東京メトロ銀座線神田」 徒歩3分
東京メトロ丸ノ内線淡路町」 徒歩3分
都営新宿線小川町」 徒歩3分
竣工 2005年12月 構造 SRC+鉄骨造
規模 地上12階, 地下1階 耐震基準 新耐震基準
床構造 フリーアクセス 100mm 空調設備 個別空調
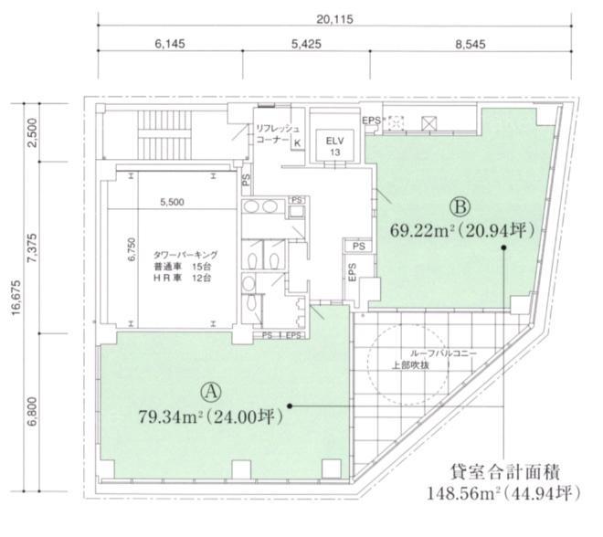
天井高 2600mm 基準階面積 55.64坪(183.93m2)
コンセント容量 100VA/m2 施工会社

最新の募集状況や類似物件については、
こちらにお問い合わせください。

C-5ビル 外観

外観

建物パンフレット

建物パンフレットは作成時点のものであり、また計画段階のものも含まれる為、実際とは異なる場合がございます。

内見やお見積りなどの各種お問い合わせ

全物件
仲介手数料無料
仲介から
入居工事まで
ワンストップで対応
経験豊富なスタッフが
スピード感をもって
対応

周辺での似た条件の物件

非公開物件 多数あり!

お問い合わせフォーム