takeofficeなら掲載物件の仲介手数料は無料です

PMO神田万世橋

住所 東京都千代田区神田須田町1-3-9
交通 JR山手線神田」 徒歩6分
東京メトロ丸ノ内線淡路町」 徒歩2分
都営新宿線小川町」 徒歩2分
竣工 2020年01月 構造 鉄骨造
規模 地上12階 耐震基準 新耐震基準
床構造 フリーアクセス 100mm 空調設備 個別空調
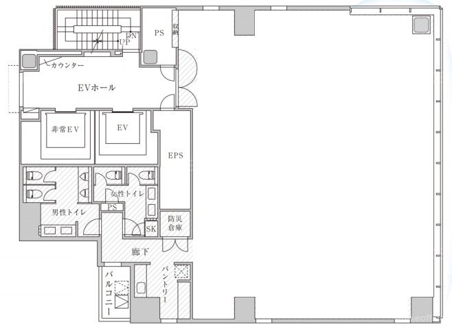
天井高 2700mm 基準階面積 69.84坪(230.88m2)
コンセント容量 60VA/m2 施工会社 西松建設
坪面積 用途 賃料 坪単価 共益費 入居可能日
11 69.89坪 事務所 募集終了登録日: 2025年08月07日
PMO神田万世橋 外観

外観

内見やお見積りなどの各種お問い合わせ

全物件
仲介手数料無料
仲介から
入居工事まで
ワンストップで対応
経験豊富なスタッフが
スピード感をもって
対応

※「ご相談」と記載されている項目について
賃貸人が募集賃料条件を守秘義務の関係から明示していない場合に、【ご相談】と記載しております。
フリーレント(賃料免除)期間、使用面積、入居時期、テナント様の与信などによりご提示できる条件が若干変化いたします。
お手数ですが、詳細につきましては、上記よりお問い合わせください。

周辺での似た条件の物件

非公開物件 多数あり!

お問い合わせフォーム