takeofficeなら掲載物件の仲介手数料は無料です

風雲堂ビル

住所 東京都千代田区神田小川町1-2
交通 東京メトロ丸ノ内線淡路町」 徒歩1分
都営新宿線小川町」 徒歩1分
竣工 1962年08月 構造 RC
規模 地上6階, 地下1階 耐震基準 新耐震基準
床構造 フリーアクセス 50mm 空調設備 個別空調
天井高 2650mm 基準階面積 170.49坪(563.6m2)
コンセント容量 - 施工会社

最新の募集状況や類似物件については、
こちらにお問い合わせください。

風雲堂ビル 外観

外観

  • 風雲堂ビル エントランス写真

    エントランス

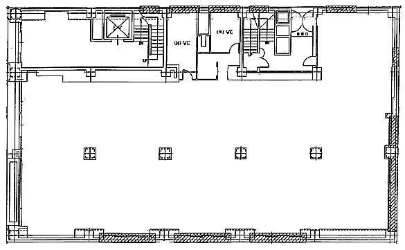
  • 基準階(3~6F)

    基準階(3~6F)

  • 1F

    1F

内見やお見積りなどの各種お問い合わせ

全物件
仲介手数料無料
仲介から
入居工事まで
ワンストップで対応
経験豊富なスタッフが
スピード感をもって
対応

周辺での似た条件の物件

非公開物件 多数あり!

お問い合わせフォーム