takeofficeなら掲載物件の仲介手数料は無料です

神田小川町SKYビルディング

住所 東京都千代田区神田小川町2-3-3
交通 都営新宿線小川町」 徒歩1分
東京メトロ千代田線新御茶ノ水」 徒歩2分
東京メトロ丸ノ内線淡路町」 徒歩2分
竣工 2010年07月 構造 鉄骨造
規模 地上9階 耐震基準 新耐震基準
床構造 フリーアクセス 100mm 空調設備 個別空調
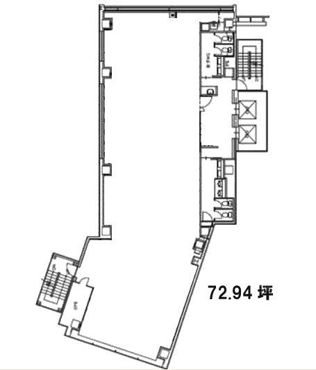
天井高 2600mm 基準階面積 84.11坪(278.05m2)
コンセント容量 70VA/m2 施工会社

最新の募集状況や類似物件については、
こちらにお問い合わせください。

神田小川町SKYビルディング 外観

外観

内見やお見積りなどの各種お問い合わせ

全物件
仲介手数料無料
仲介から
入居工事まで
ワンストップで対応
経験豊富なスタッフが
スピード感をもって
対応

周辺での似た条件の物件

非公開物件 多数あり!

お問い合わせフォーム