takeofficeなら掲載物件の仲介手数料は無料です

神田中央ビル

住所 東京都千代田区神田錦町3-20
交通 都営三田線神保町」 徒歩2分
東京メトロ東西線竹橋」 徒歩5分
JR中央線御茶ノ水」 徒歩8分
竣工 1964年11月 構造 鉄骨造
規模 地上10階, 地下3階 耐震基準 旧耐震基準
床構造 - 空調設備 セントラル空調
天井高 2500mm 基準階面積 241坪(796m2)
コンセント容量 70VA/m2 施工会社

最新の募集状況や類似物件については、
こちらにお問い合わせください。

神田中央ビル 外観

外観

  • 神田中央ビル エントランス写真

    エントランス

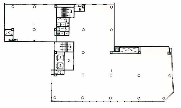
  • 2~6F

    2~6F

  • 1F

    1F

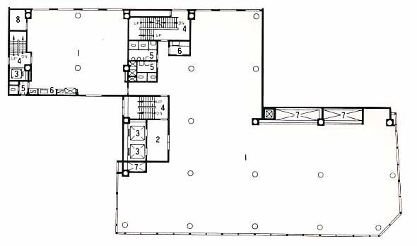
  • 7-10F

    7-10F

内見やお見積りなどの各種お問い合わせ

全物件
仲介手数料無料
仲介から
入居工事まで
ワンストップで対応
経験豊富なスタッフが
スピード感をもって
対応

周辺での似た条件の物件

非公開物件 多数あり!

お問い合わせフォーム