takeofficeなら掲載物件の仲介手数料は無料です

東京堂神保町第3ビルディング

住所 東京都千代田区神田神保町1-1-17
交通 東京メトロ半蔵門線神保町」 徒歩4分
東京メトロ千代田線新御茶ノ水」 徒歩7分
竣工 2002年03月 構造 鉄骨造+RC
規模 地上8階, 地下2階 耐震基準 新耐震基準
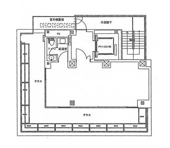
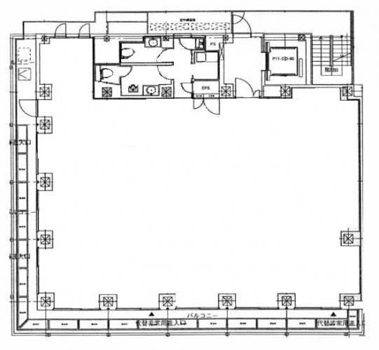
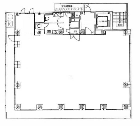
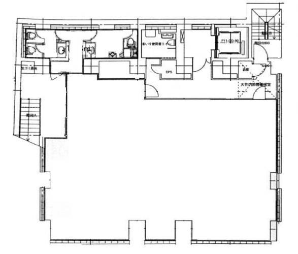
床構造 フリーアクセス 50mm 空調設備 個別空調
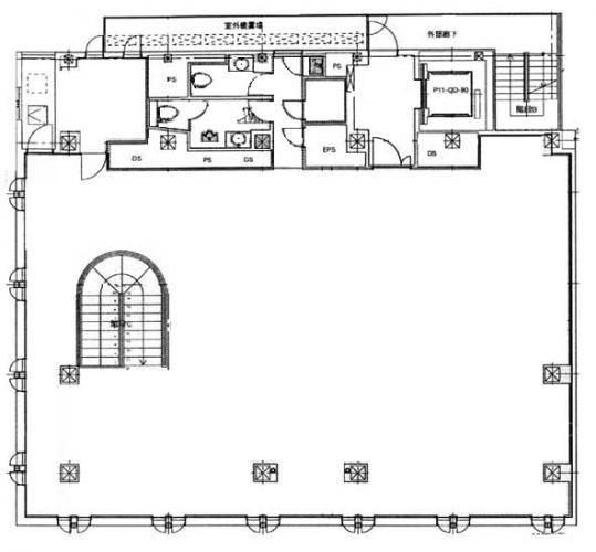
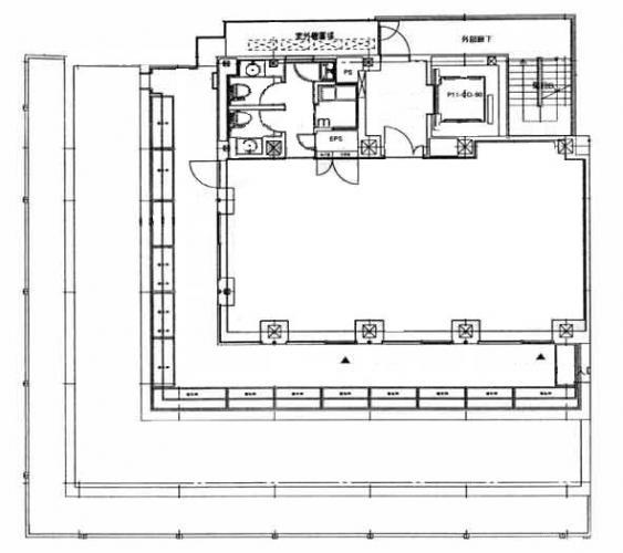
天井高 2700mm 基準階面積 57.02坪(188.5m2)
コンセント容量 - 施工会社

最新の募集状況や類似物件については、
こちらにお問い合わせください。

東京堂神保町第3ビルディング 外観

外観

内見やお見積りなどの各種お問い合わせ

全物件
仲介手数料無料
仲介から
入居工事まで
ワンストップで対応
経験豊富なスタッフが
スピード感をもって
対応

周辺での似た条件の物件

非公開物件 多数あり!

お問い合わせフォーム