takeofficeなら掲載物件の仲介手数料は無料です

神保町101ビル

住所 東京都千代田区神田神保町1-101
交通 東京メトロ半蔵門線神保町」 徒歩3分
東京メトロ東西線竹橋」 徒歩9分
東京メトロ千代田線新御茶ノ水」 徒歩9分
竣工 2002年01月 構造 鉄骨造
規模 地上12階, 地下1階 耐震基準 新耐震基準
床構造 フリーアクセス 100mm 空調設備 個別空調
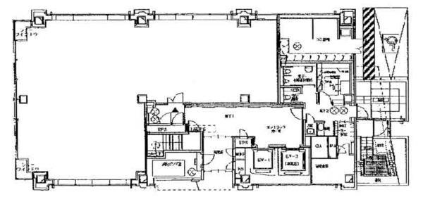
天井高 2600mm 基準階面積 80.87坪(267.34m2)
コンセント容量 - 施工会社

最新の募集状況や類似物件については、
こちらにお問い合わせください。

神保町101ビル 外観

外観

内見やお見積りなどの各種お問い合わせ

全物件
仲介手数料無料
仲介から
入居工事まで
ワンストップで対応
経験豊富なスタッフが
スピード感をもって
対応

周辺での似た条件の物件

非公開物件 多数あり!

お問い合わせフォーム