takeofficeなら掲載物件の仲介手数料は無料です

ノーブルコート平河町

住所 東京都千代田区平河町2-4-13
交通 東京メトロ半蔵門線永田町」 徒歩5分
東京メトロ有楽町線麹町」 徒歩6分
東京メトロ銀座線赤坂見附」 徒歩7分
竣工 2003年06月 構造 RC
規模 地上8階 耐震基準 新耐震基準
床構造 フリーアクセス 40mm 空調設備 個別空調
天井高 2430mm 基準階面積 76.99坪(254.51m2)
コンセント容量 130VA/m2 施工会社 日本鋪道

最新の募集状況や類似物件については、
こちらにお問い合わせください。

ノーブルコート平河町 外観

外観

  • ノーブルコート平河町 エントランス写真

    エントランス

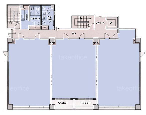
  • 基準階(2~5F)

    基準階(2~5F)

  • 1F

    1F

  • 6~7F

    6~7F

  • 8F

    8F

建物パンフレット

建物パンフレットは作成時点のものであり、また計画段階のものも含まれる為、実際とは異なる場合がございます。

内見やお見積りなどの各種お問い合わせ

全物件
仲介手数料無料
仲介から
入居工事まで
ワンストップで対応
経験豊富なスタッフが
スピード感をもって
対応

周辺での似た条件の物件

非公開物件 多数あり!

お問い合わせフォーム