takeofficeなら掲載物件の仲介手数料は無料です

塩崎ビル

住所 東京都千代田区平河町2-7-1
交通 東京メトロ半蔵門線永田町」 徒歩1分
東京メトロ銀座線赤坂見附」 徒歩6分
東京メトロ丸ノ内線国会議事堂前」 徒歩10分
竣工 1963年09月 構造 SRC
規模 地上7階, 地下2階 耐震基準 新耐震基準
床構造 フリーアクセス 空調設備 個別空調
天井高 2650mm 基準階面積 227坪(750m2)
コンセント容量 - 施工会社

最新の募集状況や類似物件については、
こちらにお問い合わせください。

塩崎ビル 外観

外観

  • 塩崎ビル エントランス写真

    エントランス

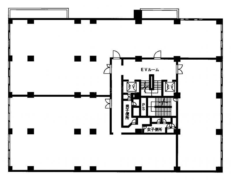
  • 基準階

    基準階

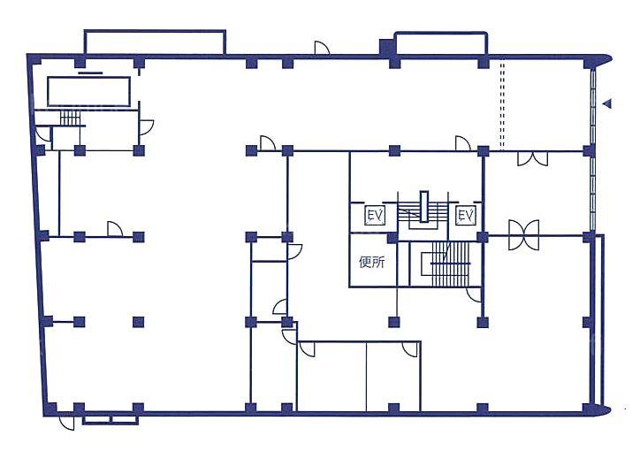
  • 1F

    1F

  • 2F

    2F

  • B2F

    B2F

建物パンフレット

建物パンフレットは作成時点のものであり、また計画段階のものも含まれる為、実際とは異なる場合がございます。

内見やお見積りなどの各種お問い合わせ

全物件
仲介手数料無料
仲介から
入居工事まで
ワンストップで対応
経験豊富なスタッフが
スピード感をもって
対応

周辺での似た条件の物件

非公開物件 多数あり!

お問い合わせフォーム