takeofficeなら掲載物件の仲介手数料は無料です

麹町スクエアプラザ

住所 東京都千代田区麹町2-4-11
交通 東京メトロ半蔵門線半蔵門」 徒歩5分
東京メトロ有楽町線麹町」 徒歩5分
竣工 2009年06月 構造 SRC+鉄骨造
規模 地上11階 耐震基準 新耐震基準
床構造 フリーアクセス 50mm 空調設備 個別空調
天井高 2550mm 基準階面積 50.62坪(167.34m2)
コンセント容量 - 施工会社

最新の募集状況や類似物件については、
こちらにお問い合わせください。

麹町スクエアプラザ 外観

外観

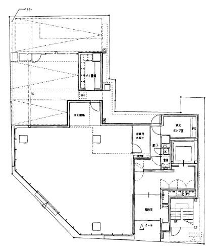
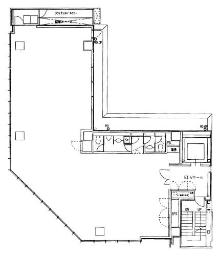
建物パンフレット

建物パンフレットは作成時点のものであり、また計画段階のものも含まれる為、実際とは異なる場合がございます。

内見やお見積りなどの各種お問い合わせ

全物件
仲介手数料無料
仲介から
入居工事まで
ワンストップで対応
経験豊富なスタッフが
スピード感をもって
対応

周辺での似た条件の物件

非公開物件 多数あり!

お問い合わせフォーム