takeofficeなら掲載物件の仲介手数料は無料です

労金新橋ビル

住所 東京都港区新橋2-12-7
交通 JR山手線新橋」 徒歩4分
都営三田線内幸町」 徒歩2分
東京メトロ銀座線虎ノ門」 徒歩8分
竣工 1986年04月 構造 RC
規模 地上7階, 地下1階 耐震基準 新耐震基準
床構造 - 空調設備 個別空調
天井高 - 基準階面積 82.58坪(272.99m2)
コンセント容量 - 施工会社

最新の募集状況や類似物件については、
こちらにお問い合わせください。

労金新橋ビル 外観

外観

  • 労金新橋ビル エントランス写真

    エントランス

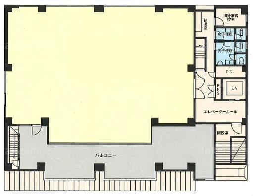
  • 7F

    7F

内見やお見積りなどの各種お問い合わせ

全物件
仲介手数料無料
仲介から
入居工事まで
ワンストップで対応
経験豊富なスタッフが
スピード感をもって
対応

周辺での似た条件の物件

非公開物件 多数あり!

お問い合わせフォーム