takeofficeなら掲載物件の仲介手数料は無料です

VORT芝公園

住所 東京都港区芝2-27-8
交通 都営浅草線三田」 徒歩8分
都営三田線芝公園」 徒歩8分
JR山手線浜松町」 徒歩9分
竣工 1988年03月 構造 鉄骨造
規模 地上8階 耐震基準 新耐震基準
床構造 フリーアクセス 空調設備 個別空調
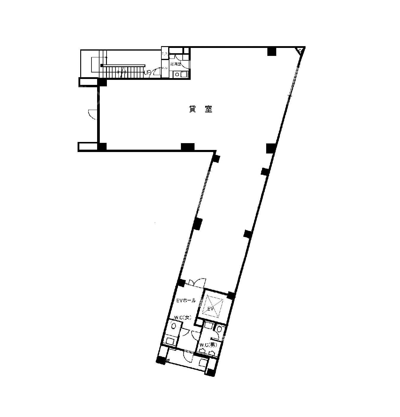
天井高 2430mm 基準階面積 52.85坪(174.71m2)
コンセント容量 40VA/m2 施工会社
坪面積 用途 賃料 坪単価 共益費 入居可能日
1 37.2坪 事務所兼店舗 相談 相談 相談 2026年6月中旬
VORT芝公園 外観

外観

  • VORT芝公園 エントランス写真

    エントランス

  • 基準階

    基準階

内見やお見積りなどの各種お問い合わせ

全物件
仲介手数料無料
仲介から
入居工事まで
ワンストップで対応
経験豊富なスタッフが
スピード感をもって
対応

※「ご相談」と記載されている項目について
賃貸人が募集賃料条件を守秘義務の関係から明示していない場合に、【ご相談】と記載しております。
フリーレント(賃料免除)期間、使用面積、入居時期、テナント様の与信などによりご提示できる条件が若干変化いたします。
お手数ですが、詳細につきましては、上記よりお問い合わせください。

周辺での似た条件の物件

非公開物件 多数あり!

お問い合わせフォーム