takeofficeなら掲載物件の仲介手数料は無料です

新橋マリンビル

住所 東京都港区新橋2-19-10
交通 JR山手線新橋」 徒歩1分
東京メトロ銀座線新橋」 徒歩1分
ゆりかもめ新橋」 徒歩1分
竣工 1993年12月 構造 鉄骨造+SRC
規模 地上10階, 地下2階 耐震基準 新耐震基準
床構造 フリーアクセス 40mm 空調設備 個別空調
天井高 2600mm 基準階面積 96.42坪(318.74m2)
コンセント容量 40VA/m2 施工会社

最新の募集状況や類似物件については、
こちらにお問い合わせください。

新橋マリンビル 外観

外観

  • 新橋マリンビル エントランス写真

    エントランス

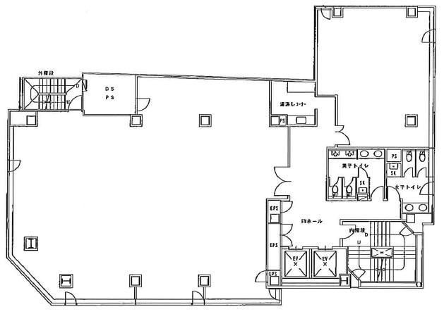
  • 基準階

    基準階

  • 1F

    1F

  • 7F

    7F

  • 8F

    8F

  • 9F

    9F

内見やお見積りなどの各種お問い合わせ

全物件
仲介手数料無料
仲介から
入居工事まで
ワンストップで対応
経験豊富なスタッフが
スピード感をもって
対応

周辺での似た条件の物件

非公開物件 多数あり!

お問い合わせフォーム