takeofficeなら掲載物件の仲介手数料は無料です

5東洋海事ビル

住所 東京都港区新橋3-2-5
交通 JR東海道線新橋」 徒歩5分
東京メトロ銀座線新橋」 徒歩5分
都営三田線内幸町」 徒歩4分
竣工 1973年04月 構造 RC
規模 地上6階, 地下1階 耐震基準 耐震診断書有
床構造 - 空調設備 個別空調
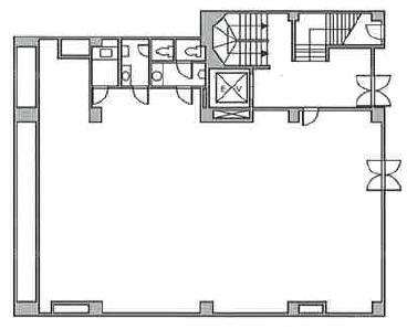
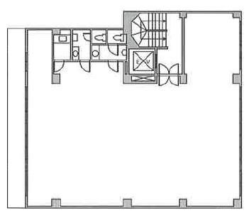
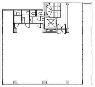
天井高 2500mm 基準階面積 70坪(231m2)
コンセント容量 - 施工会社
坪面積 用途 賃料 坪単価 共益費 入居可能日
3 65坪 事務所 相談 相談 相談 相談
5 181.81坪 事務所 相談 相談 相談 2026年3月
5東洋海事ビル 外観

外観

内見やお見積りなどの各種お問い合わせ

全物件
仲介手数料無料
仲介から
入居工事まで
ワンストップで対応
経験豊富なスタッフが
スピード感をもって
対応

※「ご相談」と記載されている項目について
賃貸人が募集賃料条件を守秘義務の関係から明示していない場合に、【ご相談】と記載しております。
フリーレント(賃料免除)期間、使用面積、入居時期、テナント様の与信などによりご提示できる条件が若干変化いたします。
お手数ですが、詳細につきましては、上記よりお問い合わせください。

周辺での似た条件の物件

非公開物件 多数あり!

お問い合わせフォーム