takeofficeなら掲載物件の仲介手数料は無料です

住友東新橋ビル5号館

住所 東京都港区東新橋2-11-7
交通 都営大江戸線大門」 徒歩4分
都営三田線御成門」 徒歩6分
都営大江戸線汐留」 徒歩9分
竣工 1988年02月 構造 SRC
規模 地上9階 耐震基準 新耐震基準
床構造 フリーアクセス 100mm 空調設備 個別空調
天井高 2400mm 基準階面積 74.74坪(247.07m2)
コンセント容量 50VA/m2 施工会社

最新の募集状況や類似物件については、
こちらにお問い合わせください。

住友東新橋ビル5号館 外観

外観

  • 住友東新橋ビル5号館 エントランス写真

    エントランス

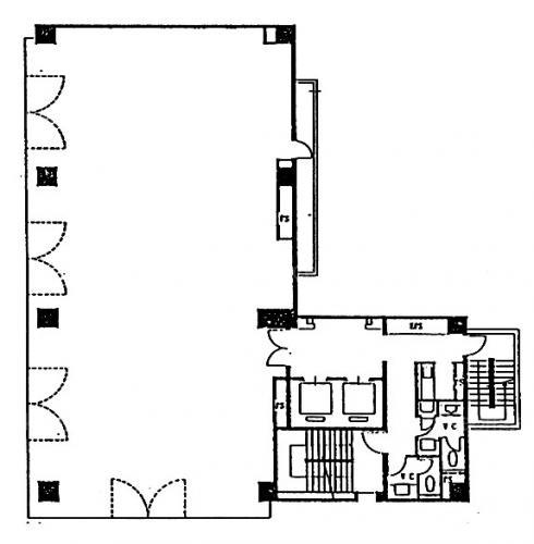
  • 基準階

    基準階

内見やお見積りなどの各種お問い合わせ

全物件
仲介手数料無料
仲介から
入居工事まで
ワンストップで対応
経験豊富なスタッフが
スピード感をもって
対応

周辺での似た条件の物件

非公開物件 多数あり!

お問い合わせフォーム