takeofficeなら掲載物件の仲介手数料は無料です

内幸町ケイズビル

住所 東京都港区西新橋1-15-5
交通 JR山手線新橋」 徒歩3分
都営三田線内幸町」 徒歩1分
東京メトロ銀座線虎ノ門」 徒歩3分
竣工 1989年10月 構造 鉄骨造
規模 地上9階 耐震基準 新耐震基準
床構造 フリーアクセス 空調設備 個別空調
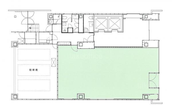
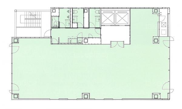
天井高 2600mm 基準階面積 64.64坪(213.69m2)
コンセント容量 - 施工会社

最新の募集状況や類似物件については、
こちらにお問い合わせください。

内幸町ケイズビル 外観

外観

  • NOW PRINTING

    エントランス

  • 基準階

    基準階

  • 1F

    1F

内見やお見積りなどの各種お問い合わせ

全物件
仲介手数料無料
仲介から
入居工事まで
ワンストップで対応
経験豊富なスタッフが
スピード感をもって
対応

周辺での似た条件の物件

非公開物件 多数あり!

お問い合わせフォーム