takeofficeなら掲載物件の仲介手数料は無料です

TKK西新橋ビル

住所 東京都港区西新橋2-11-5
交通 都営三田線内幸町」 徒歩6分
東京メトロ銀座線虎ノ門」 徒歩7分
竣工 1973年02月 構造 -
規模 地上8階, 地下0階 耐震基準 旧耐震基準
床構造 - 空調設備 -
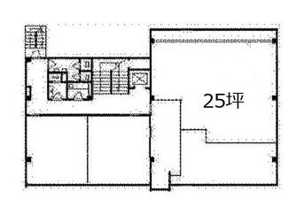
天井高 - 基準階面積 86坪(285m2)
コンセント容量 - 施工会社

最新の募集状況や類似物件については、
こちらにお問い合わせください。

TKK西新橋ビル 外観

外観

  • TKK西新橋ビル エントランス写真

    エントランス

内見やお見積りなどの各種お問い合わせ

全物件
仲介手数料無料
仲介から
入居工事まで
ワンストップで対応
経験豊富なスタッフが
スピード感をもって
対応

周辺での似た条件の物件

非公開物件 多数あり!

お問い合わせフォーム