takeofficeなら掲載物件の仲介手数料は無料です

新橋NKKビル

住所 東京都港区西新橋2-18-2
交通 東京メトロ銀座線虎ノ門」 徒歩6分
都営三田線内幸町」 徒歩7分
JR山手線新橋」 徒歩9分
竣工 1987年09月 構造 SRC
規模 地上9階 耐震基準 新耐震基準
床構造 - 空調設備 個別空調
天井高 - 基準階面積 60坪(198.34m2)
コンセント容量 - 施工会社

最新の募集状況や類似物件については、
こちらにお問い合わせください。

新橋NKKビル 外観

外観

  • 新橋NKKビル エントランス写真

    エントランス

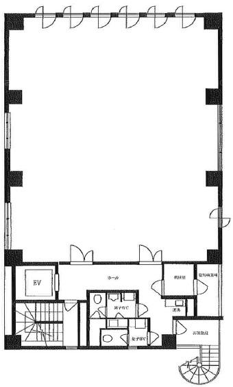
  • 基準階

    基準階

  • 1F

    1F

  • 2F

    2F

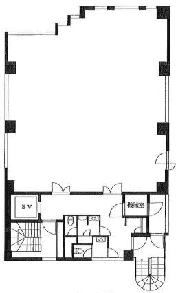
  • 8F

    8F

内見やお見積りなどの各種お問い合わせ

全物件
仲介手数料無料
仲介から
入居工事まで
ワンストップで対応
経験豊富なスタッフが
スピード感をもって
対応

周辺での似た条件の物件

非公開物件 多数あり!

お問い合わせフォーム