takeofficeなら掲載物件の仲介手数料は無料です

喜助西新橋ビル

住所 東京都港区西新橋2-19-4
交通 都営三田線内幸町」 徒歩6分
東京メトロ銀座線虎ノ門」 徒歩8分
都営三田線御成門」 徒歩8分
竣工 1984年09月 構造 SRC
規模 地上7階, 地下1階 耐震基準 新耐震基準
床構造 - 空調設備 個別空調
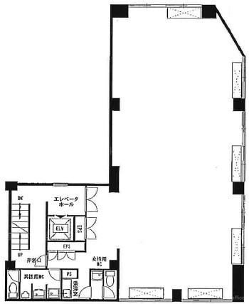
天井高 - 基準階面積 52.98坪(175.14m2)
コンセント容量 - 施工会社

最新の募集状況や類似物件については、
こちらにお問い合わせください。

喜助西新橋ビル 外観

外観

  • 喜助西新橋ビル エントランス写真

    エントランス

  • 基準階

    基準階

  • 1F

    1F

  • 7F

    7F

内見やお見積りなどの各種お問い合わせ

全物件
仲介手数料無料
仲介から
入居工事まで
ワンストップで対応
経験豊富なスタッフが
スピード感をもって
対応

周辺での似た条件の物件

非公開物件 多数あり!

お問い合わせフォーム