takeofficeなら掲載物件の仲介手数料は無料です

カザマビル

住所 東京都港区西新橋2-19-5
交通 都営三田線内幸町」 徒歩6分
JR山手線新橋」 徒歩8分
東京メトロ銀座線虎ノ門」 徒歩7分
竣工 1988年05月 構造 SRC
規模 地上9階, 地下1階 耐震基準 新耐震基準
床構造 フリーアクセス 空調設備 個別空調
天井高 - 基準階面積 64坪(212m2)
コンセント容量 - 施工会社

最新の募集状況や類似物件については、
こちらにお問い合わせください。

カザマビル 外観

外観

  • カザマビル エントランス写真

    エントランス

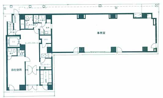
  • 2F

    2F

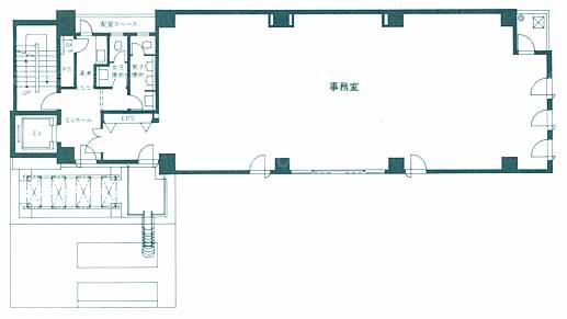
  • 1F

    1F

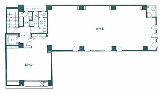
  • 3F

    3F

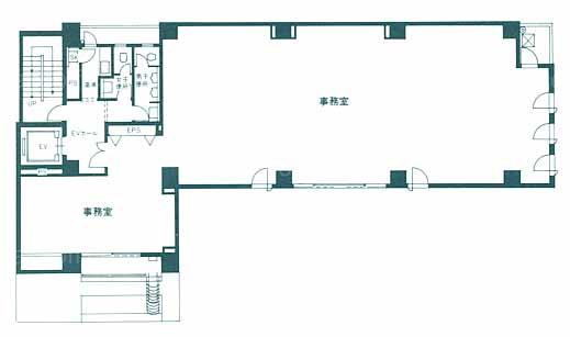
  • 4F

    4F

  • 5F

    5F

  • 6F

    6F

  • 7F

    7F

  • 8F

    8F

内見やお見積りなどの各種お問い合わせ

全物件
仲介手数料無料
仲介から
入居工事まで
ワンストップで対応
経験豊富なスタッフが
スピード感をもって
対応

周辺での似た条件の物件

非公開物件 多数あり!

お問い合わせフォーム