takeofficeなら掲載物件の仲介手数料は無料です

第1南桜ビル

住所 東京都港区西新橋2-21-2
交通 都営三田線内幸町」 徒歩5分
東京メトロ銀座線虎ノ門」 徒歩6分
JR東海道線新橋」 徒歩7分
竣工 1962年01月 構造 RC
規模 地上7階, 地下1階 耐震基準 旧耐震基準
床構造 フリーアクセス 空調設備 個別空調
天井高 - 基準階面積 85坪(280m2)
コンセント容量 - 施工会社

最新の募集状況や類似物件については、
こちらにお問い合わせください。

第1南桜ビル 外観

外観

  • 第1南桜ビル エントランス写真

    エントランス

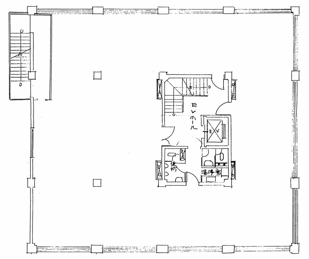
  • 基準階(2~5F)

    基準階(2~5F)

内見やお見積りなどの各種お問い合わせ

全物件
仲介手数料無料
仲介から
入居工事まで
ワンストップで対応
経験豊富なスタッフが
スピード感をもって
対応

周辺での似た条件の物件

非公開物件 多数あり!

お問い合わせフォーム