takeofficeなら掲載物件の仲介手数料は無料です

第2ローレルビル

住所 東京都港区虎ノ門1-1-10
交通 東京メトロ銀座線虎ノ門」 徒歩1分
竣工 1988年08月 構造 -
規模 地上8階 耐震基準 新耐震基準
床構造 フリーアクセス 空調設備 個別空調
天井高 - 基準階面積 55.52坪(183.54m2)
コンセント容量 - 施工会社

最新の募集状況や類似物件については、
こちらにお問い合わせください。

第2ローレルビル 外観

外観

  • 第2ローレルビル エントランス写真

    エントランス

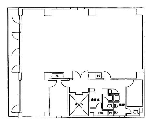
  • 基準階(2~5F)

    基準階(2~5F)

  • 1F

    1F

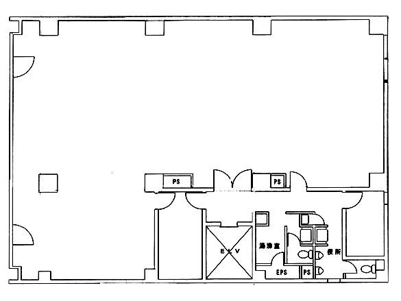
  • 6F

    6F

  • 7F

    7F

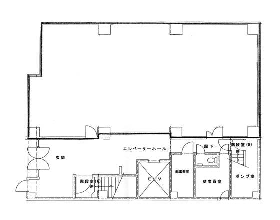
  • 8F

    8F

内見やお見積りなどの各種お問い合わせ

全物件
仲介手数料無料
仲介から
入居工事まで
ワンストップで対応
経験豊富なスタッフが
スピード感をもって
対応

周辺での似た条件の物件

非公開物件 多数あり!

お問い合わせフォーム