takeofficeなら掲載物件の仲介手数料は無料です

虎ノ門産業ビル

住所 東京都港区虎ノ門1-2-29
交通 東京メトロ銀座線虎ノ門」 徒歩1分
東京メトロ日比谷線霞ヶ関」 徒歩4分
都営三田線内幸町」 徒歩8分
竣工 1959年02月 構造 RC
規模 地上9階, 地下2階 耐震基準 旧耐震基準
床構造 - 空調設備 個別空調
天井高 3030mm 基準階面積 61.71坪(204.01m2)
コンセント容量 - 施工会社

最新の募集状況や類似物件については、
こちらにお問い合わせください。

虎ノ門産業ビル 外観

外観

  • 虎ノ門産業ビル エントランス写真

    エントランス

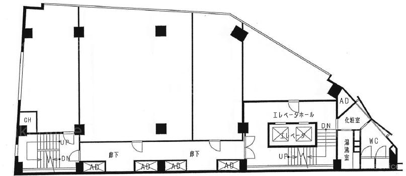
  • 基準階

    基準階

  • 2F

    2F

  • 7F

    7F

  • 8F

    8F

内見やお見積りなどの各種お問い合わせ

全物件
仲介手数料無料
仲介から
入居工事まで
ワンストップで対応
経験豊富なスタッフが
スピード感をもって
対応

周辺での似た条件の物件

非公開物件 多数あり!

お問い合わせフォーム