takeofficeなら掲載物件の仲介手数料は無料です

オフィス虎ノ門1ビル

住所 東京都港区虎ノ門1-5-8
交通 東京メトロ銀座線虎ノ門」 徒歩2分
都営三田線内幸町」 徒歩6分
東京メトロ丸ノ内線霞ヶ関」 徒歩6分
竣工 1984年01月 構造 SRC
規模 地上9階, 地下1階 耐震基準 新耐震基準
床構造 - 空調設備 個別空調
天井高 2400mm 基準階面積 53.53坪(176.96m2)
コンセント容量 - 施工会社

最新の募集状況や類似物件については、
こちらにお問い合わせください。

オフィス虎ノ門1ビル 外観

外観

  • オフィス虎ノ門1ビル エントランス写真

    エントランス

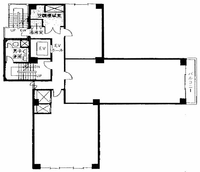
  • 8F

    8F

  • 9F

    9F

内見やお見積りなどの各種お問い合わせ

全物件
仲介手数料無料
仲介から
入居工事まで
ワンストップで対応
経験豊富なスタッフが
スピード感をもって
対応

周辺での似た条件の物件

非公開物件 多数あり!

お問い合わせフォーム