takeofficeなら掲載物件の仲介手数料は無料です

青木ビル

住所 東京都港区虎ノ門4-1-10
交通 東京メトロ日比谷線神谷町」 徒歩1分
竣工 1986年10月 構造 RC
規模 地上7階 耐震基準 新耐震基準
床構造 フリーアクセス 空調設備 個別空調
天井高 - 基準階面積 53.3坪(176.2m2)
コンセント容量 - 施工会社

最新の募集状況や類似物件については、
こちらにお問い合わせください。

青木ビル 外観

外観

  • 青木ビル エントランス写真

    エントランス

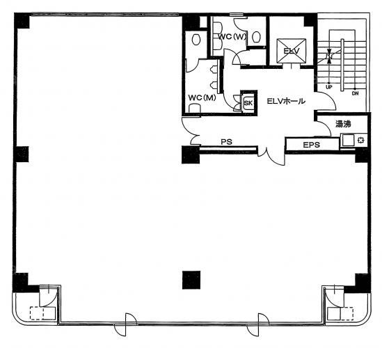
  • 基準階(2~5F)

    基準階(2~5F)

  • 1F

    1F

内見やお見積りなどの各種お問い合わせ

全物件
仲介手数料無料
仲介から
入居工事まで
ワンストップで対応
経験豊富なスタッフが
スピード感をもって
対応

周辺での似た条件の物件

非公開物件 多数あり!

お問い合わせフォーム