takeofficeなら掲載物件の仲介手数料は無料です

赤坂山田ビル

住所 東京都港区赤坂2-21-8
交通 東京メトロ銀座線溜池山王」 徒歩4分
東京メトロ千代田線赤坂」 徒歩6分
竣工 1990年08月 構造 鉄骨造
規模 地上5階, 地下1階 耐震基準 新耐震基準
床構造 フリーアクセス 50mm 空調設備 個別空調
天井高 2600mm 基準階面積 54.98坪(181.75m2)
コンセント容量 - 施工会社

最新の募集状況や類似物件については、
こちらにお問い合わせください。

赤坂山田ビル 外観

外観

  • 赤坂山田ビル エントランス写真

    エントランス

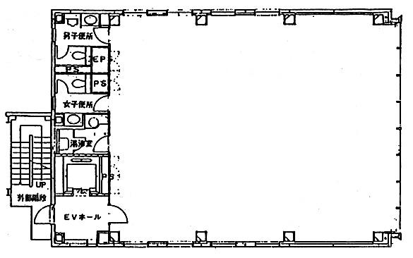
  • 基準階(2~4F)

    基準階(2~4F)

  • 1F

    1F

  • 5F

    5F

内見やお見積りなどの各種お問い合わせ

全物件
仲介手数料無料
仲介から
入居工事まで
ワンストップで対応
経験豊富なスタッフが
スピード感をもって
対応

周辺での似た条件の物件

非公開物件 多数あり!

お問い合わせフォーム