takeofficeなら掲載物件の仲介手数料は無料です

赤坂日本ビル

住所 東京都港区赤坂9-5-24
交通 東京メトロ千代田線乃木坂」 徒歩1分
都営大江戸線六本木」 徒歩7分
東京メトロ銀座線青山一丁目」 徒歩9分
竣工 1994年09月 構造 SRC
規模 地上5階, 地下1階 耐震基準 新耐震基準
床構造 フリーアクセス 40mm 空調設備 個別空調
天井高 2600mm 基準階面積 93坪(308m2)
コンセント容量 - 施工会社

最新の募集状況や類似物件については、
こちらにお問い合わせください。

赤坂日本ビル 外観

外観

  • 赤坂日本ビル エントランス写真

    エントランス

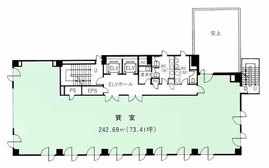
  • 3F

    3F

  • 1F

    1F

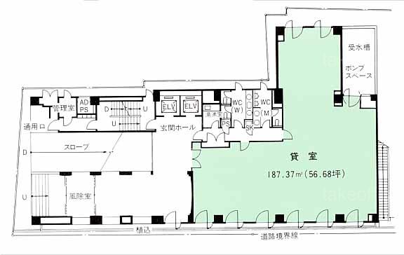
  • 2F

    2F

  • 4F

    4F

  • 5F

    5F

内見やお見積りなどの各種お問い合わせ

全物件
仲介手数料無料
仲介から
入居工事まで
ワンストップで対応
経験豊富なスタッフが
スピード感をもって
対応

周辺での似た条件の物件

非公開物件 多数あり!

お問い合わせフォーム