takeofficeなら掲載物件の仲介手数料は無料です

VORT芝大門2

住所 東京都港区芝大門1-3-8
交通 都営大江戸線大門」 徒歩3分
JR京浜東北線浜松町」 徒歩6分
東京モノレール浜松町」 徒歩6分
竣工 1992年12月 構造 SRC+鉄骨造
規模 地上9階 耐震基準 新耐震基準
床構造 フリーアクセス 50mm 空調設備 個別空調
天井高 2500mm 基準階面積 58.16坪(192.26m2)
コンセント容量 - 施工会社

最新の募集状況や類似物件については、
こちらにお問い合わせください。

VORT芝大門2 外観

外観

  • VORT芝大門2 エントランス写真

    エントランス

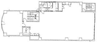
  • 基準階

    基準階

内見やお見積りなどの各種お問い合わせ

全物件
仲介手数料無料
仲介から
入居工事まで
ワンストップで対応
経験豊富なスタッフが
スピード感をもって
対応

周辺での似た条件の物件

非公開物件 多数あり!

お問い合わせフォーム