takeofficeなら掲載物件の仲介手数料は無料です

全国たばこビル

住所 東京都港区芝大門1-10-1
交通 都営三田線御成門」 徒歩3分
都営大江戸線大門」 徒歩4分
JR京浜東北線浜松町」 徒歩7分
竣工 1964年10月 構造 SRC
規模 地上9階, 地下1階 耐震基準 旧耐震基準
床構造 - 空調設備 個別空調
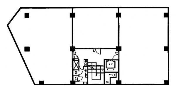
天井高 2490mm 基準階面積 88坪(291m2)
コンセント容量 - 施工会社

最新の募集状況や類似物件については、
こちらにお問い合わせください。

全国たばこビル 外観

外観

  • 全国たばこビル エントランス写真

    エントランス

  • 4F

    4F

  • 7F

    7F

内見やお見積りなどの各種お問い合わせ

全物件
仲介手数料無料
仲介から
入居工事まで
ワンストップで対応
経験豊富なスタッフが
スピード感をもって
対応

周辺での似た条件の物件

非公開物件 多数あり!

お問い合わせフォーム