takeofficeなら掲載物件の仲介手数料は無料です

浜松町シミヅ産業ビル

住所 東京都港区浜松町1-2-4
交通 都営大江戸線大門」 徒歩5分
都営三田線御成門」 徒歩5分
JR京浜東北線浜松町」 徒歩7分
竣工 1989年04月 構造 SRC
規模 地上6階, 地下1階 耐震基準 新耐震基準
床構造 フリーアクセス 50mm 空調設備 個別空調
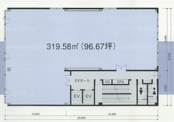
天井高 2500mm 基準階面積 96.67坪(319.57m2)
コンセント容量 43VA/m2 施工会社

最新の募集状況や類似物件については、
こちらにお問い合わせください。

浜松町シミヅ産業ビル 外観

外観

  • 浜松町シミヅ産業ビル エントランス写真

    エントランス

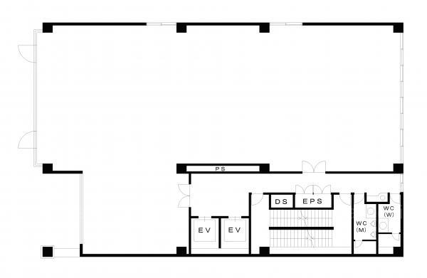
  • 基準階

    基準階

  • 1F

    1F

  • 2F

    2F

内見やお見積りなどの各種お問い合わせ

全物件
仲介手数料無料
仲介から
入居工事まで
ワンストップで対応
経験豊富なスタッフが
スピード感をもって
対応

周辺での似た条件の物件

非公開物件 多数あり!

お問い合わせフォーム