takeofficeなら掲載物件の仲介手数料は無料です

サイトービル

住所 東京都港区南青山2-12-15
交通 東京メトロ銀座線外苑前」 徒歩2分
東京メトロ半蔵門線青山一丁目」 徒歩5分
東京メトロ千代田線乃木坂」 徒歩12分
竣工 1983年 構造 SRC
規模 地上9階, 地下0階 耐震基準 新耐震基準
床構造 フリーアクセス 空調設備 個別空調
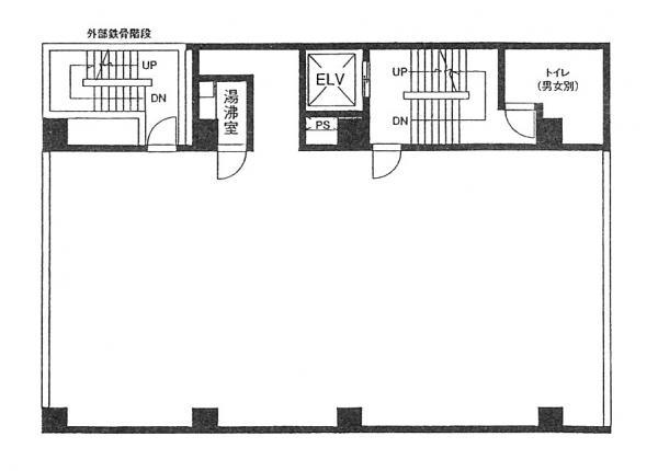
天井高 - 基準階面積 51.42坪(169.98m2)
コンセント容量 - 施工会社

最新の募集状況や類似物件については、
こちらにお問い合わせください。

サイトービル 外観

外観

  • NOW PRINTING

    エントランス

  • 基準階

    基準階

  • 8F

    8F

内見やお見積りなどの各種お問い合わせ

全物件
仲介手数料無料
仲介から
入居工事まで
ワンストップで対応
経験豊富なスタッフが
スピード感をもって
対応

周辺での似た条件の物件

非公開物件 多数あり!

お問い合わせフォーム