takeofficeなら掲載物件の仲介手数料は無料です

ビッグストーンビル

住所 東京都港区南青山3-17-11
交通 東京メトロ銀座線表参道」 徒歩3分
竣工 1990年02月 構造 RC
規模 地上5階, 地下2階 耐震基準 新耐震基準
床構造 - 空調設備 フロア別+個別
天井高 3030mm 基準階面積 64坪(214m2)
コンセント容量 30VA/m2 施工会社

最新の募集状況や類似物件については、
こちらにお問い合わせください。

ビッグストーンビル 外観

外観

  • ビッグストーンビル エントランス写真

    エントランス

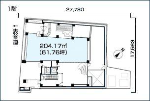
  • 1F

    1F

内見やお見積りなどの各種お問い合わせ

全物件
仲介手数料無料
仲介から
入居工事まで
ワンストップで対応
経験豊富なスタッフが
スピード感をもって
対応

周辺での似た条件の物件

非公開物件 多数あり!

お問い合わせフォーム