takeofficeなら掲載物件の仲介手数料は無料です

VORT南青山1

住所 東京都港区南青山6-7-2
交通 東京メトロ半蔵門線表参道」 徒歩11分
東京メトロ日比谷線広尾」 徒歩16分
東京メトロ銀座線外苑前」 徒歩19分
竣工 1991年08月 構造 鉄骨造
規模 地上10階, 地下1階 耐震基準 新耐震基準
床構造 フリーアクセス 50mm 空調設備 個別空調
天井高 2350mm 基準階面積 59.2坪(195.7m2)
コンセント容量 - 施工会社

最新の募集状況や類似物件については、
こちらにお問い合わせください。

VORT南青山1 外観

外観

  • VORT南青山1 エントランス写真

    エントランス

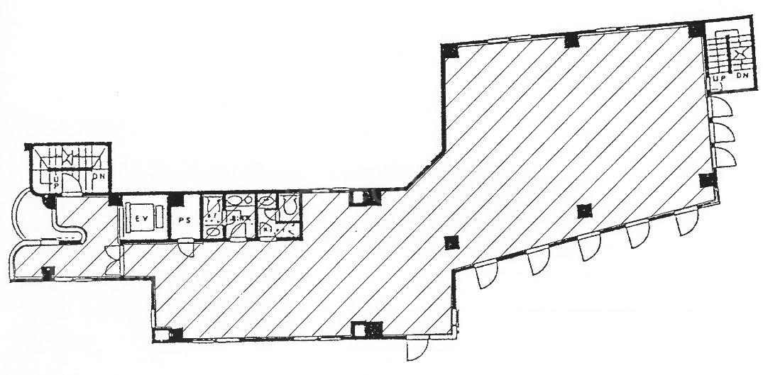
  • 基準階(3~7F)

    基準階(3~7F)

  • 1F

    1F

  • 2F

    2F

  • 8~10F

    8~10F

内見やお見積りなどの各種お問い合わせ

全物件
仲介手数料無料
仲介から
入居工事まで
ワンストップで対応
経験豊富なスタッフが
スピード感をもって
対応

周辺での似た条件の物件

非公開物件 多数あり!

お問い合わせフォーム