takeofficeなら掲載物件の仲介手数料は無料です

南青山STビル

住所 東京都港区南青山7-10-3
交通 東京メトロ半蔵門線表参道」 徒歩10分
東京メトロ日比谷線六本木」 徒歩13分
JR山手線渋谷」 徒歩15分
竣工 1988年12月 構造 SRC+鉄骨造
規模 地上8階, 地下1階 耐震基準 新耐震基準
床構造 3WAY 空調設備 フロア別空調
天井高 2600mm 基準階面積 96.8坪(320m2)
コンセント容量 - 施工会社

最新の募集状況や類似物件については、
こちらにお問い合わせください。

南青山STビル 外観

外観

  • 南青山STビル エントランス写真

    エントランス

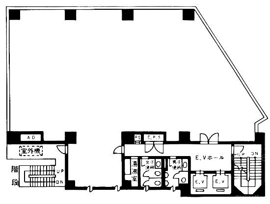
  • 基準階(3~6F)

    基準階(3~6F)

内見やお見積りなどの各種お問い合わせ

全物件
仲介手数料無料
仲介から
入居工事まで
ワンストップで対応
経験豊富なスタッフが
スピード感をもって
対応

周辺での似た条件の物件

非公開物件 多数あり!

お問い合わせフォーム