takeofficeなら掲載物件の仲介手数料は無料です

オーアイ芝浦(旧:辻田ビル)

住所 東京都港区芝浦3-19-19
交通 JR山手線田町」 徒歩7分
都営浅草線三田」 徒歩8分
竣工 1987年05月 構造 SRC
規模 地上8階 耐震基準 新耐震基準
床構造 - 空調設備 個別空調
天井高 - 基準階面積 53.42坪(176.6m2)
コンセント容量 - 施工会社

最新の募集状況や類似物件については、
こちらにお問い合わせください。

オーアイ芝浦(旧:辻田ビル) 外観

外観

  • NOW PRINTING

    エントランス

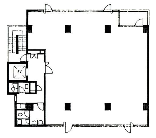
  • 基準階(2~6F)

    基準階(2~6F)

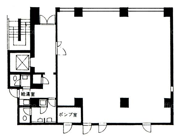
  • 1F

    1F

内見やお見積りなどの各種お問い合わせ

全物件
仲介手数料無料
仲介から
入居工事まで
ワンストップで対応
経験豊富なスタッフが
スピード感をもって
対応

周辺での似た条件の物件

非公開物件 多数あり!

お問い合わせフォーム