takeofficeなら掲載物件の仲介手数料は無料です

STKビル

住所 東京都港区芝2-22-15
交通 都営三田線芝公園」 徒歩2分
都営浅草線三田」 徒歩3分
JR山手線田町」 徒歩8分
竣工 1993年07月 構造 RC
規模 地上6階 耐震基準 新耐震基準
床構造 フリーアクセス 50mm 空調設備 個別空調
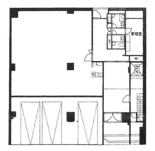
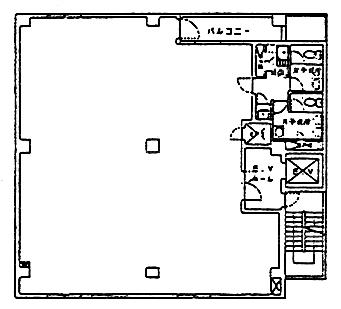
天井高 2550mm 基準階面積 58.08坪(192m2)
コンセント容量 - 施工会社

最新の募集状況や類似物件については、
こちらにお問い合わせください。

STKビル 外観

外観

内見やお見積りなどの各種お問い合わせ

全物件
仲介手数料無料
仲介から
入居工事まで
ワンストップで対応
経験豊富なスタッフが
スピード感をもって
対応

周辺での似た条件の物件

非公開物件 多数あり!

お問い合わせフォーム