takeofficeなら掲載物件の仲介手数料は無料です

芝信三田ビル

住所 東京都港区芝3-43-15
交通 都営三田線三田」 徒歩7分
都営三田線芝公園」 徒歩8分
竣工 1996年10月 構造 SRC
規模 地上7階, 地下1階 耐震基準 新耐震基準
床構造 フリーアクセス 150mm 空調設備 個別空調
天井高 2700mm 基準階面積 79.77坪(263.7m2)
コンセント容量 - 施工会社

最新の募集状況や類似物件については、
こちらにお問い合わせください。

芝信三田ビル 外観

外観

  • NOW PRINTING

    エントランス

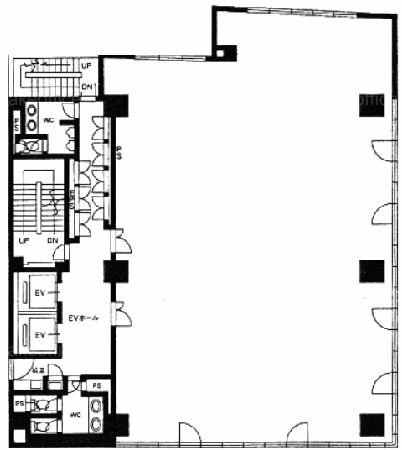
  • 基準階

    基準階

内見やお見積りなどの各種お問い合わせ

全物件
仲介手数料無料
仲介から
入居工事まで
ワンストップで対応
経験豊富なスタッフが
スピード感をもって
対応

周辺での似た条件の物件

非公開物件 多数あり!

お問い合わせフォーム