takeofficeなら掲載物件の仲介手数料は無料です

三田ベルジュビル

住所 東京都港区芝5-36-7
交通 都営浅草線三田」 徒歩3分
JR山手線田町」 徒歩6分
竣工 2012年05月 構造 RC+SRC
規模 地上33階, 地下4階 耐震基準 新耐震基準
床構造 フリーアクセス 100mm 空調設備 ゾーン空調
天井高 3000mm 基準階面積 316.13坪(1045.06m2)
コンセント容量 - 施工会社

最新の募集状況や類似物件については、
こちらにお問い合わせください。

三田ベルジュビル 外観

外観

  • 三田ベルジュビル エントランス写真

    エントランス

  • 基準階

    基準階

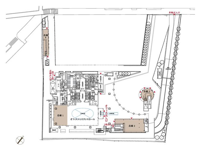
  • 1F

    1F

  • 2F

    2F

建物パンフレット

建物パンフレットは作成時点のものであり、また計画段階のものも含まれる為、実際とは異なる場合がございます。

内見やお見積りなどの各種お問い合わせ

全物件
仲介手数料無料
仲介から
入居工事まで
ワンストップで対応
経験豊富なスタッフが
スピード感をもって
対応

周辺での似た条件の物件

非公開物件 多数あり!

お問い合わせフォーム