takeofficeなら掲載物件の仲介手数料は無料です

ニキグラスビル

住所 東京都港区三田3-9-7
交通 都営浅草線泉岳寺」 徒歩3分
都営三田線三田」 徒歩10分
JR山手線田町」 徒歩11分
竣工 1982年02月 構造 SRC
規模 地上8階 耐震基準 新耐震基準
床構造 フリーアクセス 空調設備 個別空調
天井高 2500mm 基準階面積 60.16坪(198.88m2)
コンセント容量 - 施工会社

最新の募集状況や類似物件については、
こちらにお問い合わせください。

ニキグラスビル 外観

外観

  • ニキグラスビル エントランス写真

    エントランス

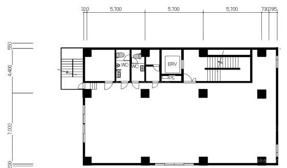
  • 基準階

    基準階

建物パンフレット

建物パンフレットは作成時点のものであり、また計画段階のものも含まれる為、実際とは異なる場合がございます。

内見やお見積りなどの各種お問い合わせ

全物件
仲介手数料無料
仲介から
入居工事まで
ワンストップで対応
経験豊富なスタッフが
スピード感をもって
対応

周辺での似た条件の物件

非公開物件 多数あり!

お問い合わせフォーム