takeofficeなら掲載物件の仲介手数料は無料です

西新宿752(旧:東信新宿ビル)

住所 東京都新宿区西新宿7-5-2
交通 西武新宿線西武新宿」 徒歩4分
JR山手線新宿」 徒歩6分
都営大江戸線新宿西口」 徒歩6分
竣工 1980年10月 構造 RC+鉄骨造
規模 地上5階 耐震基準 旧耐震基準
床構造 - 空調設備 個別空調
天井高 2500mm 基準階面積 111.18坪(367.54m2)
コンセント容量 - 施工会社

最新の募集状況や類似物件については、
こちらにお問い合わせください。

西新宿752(旧:東信新宿ビル) 外観

外観

  • 西新宿752(旧:東信新宿ビル) エントランス写真

    エントランス

  • 基準階

    基準階

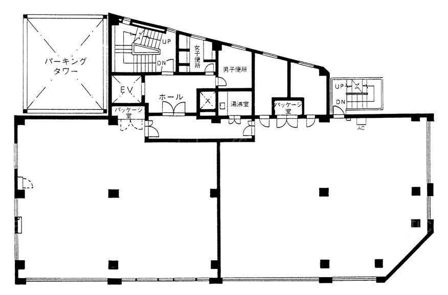
  • 基準階(3F)

    基準階(3F)

内見やお見積りなどの各種お問い合わせ

全物件
仲介手数料無料
仲介から
入居工事まで
ワンストップで対応
経験豊富なスタッフが
スピード感をもって
対応

周辺での似た条件の物件

非公開物件 多数あり!

お問い合わせフォーム