takeofficeなら掲載物件の仲介手数料は無料です

オークラヤビル

住所 東京都新宿区西新宿7-8-10
交通 都営大江戸線新宿西口」 徒歩3分
東京メトロ丸ノ内線新宿」 徒歩6分
JR山手線新宿」 徒歩8分
竣工 1969年07月 構造 SRC
規模 地上8階, 地下1階 耐震基準 旧耐震基準
床構造 フリーアクセス 空調設備 セントラル+個別
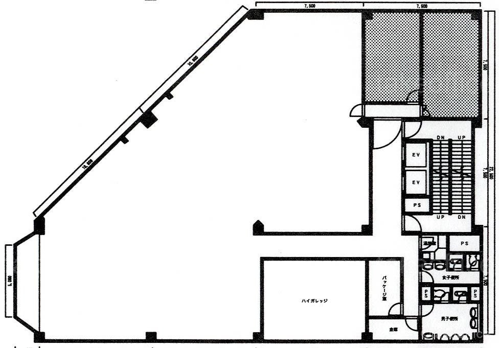
天井高 2450mm 基準階面積 110.07坪(363.87m2)
コンセント容量 - 施工会社

最新の募集状況や類似物件については、
こちらにお問い合わせください。

オークラヤビル 外観

外観

内見やお見積りなどの各種お問い合わせ

全物件
仲介手数料無料
仲介から
入居工事まで
ワンストップで対応
経験豊富なスタッフが
スピード感をもって
対応

周辺での似た条件の物件

非公開物件 多数あり!

お問い合わせフォーム