takeofficeなら掲載物件の仲介手数料は無料です

東信西新宿ビル

住所 東京都新宿区西新宿7-18-16
交通 都営大江戸線新宿西口」 徒歩4分
JR山手線新宿」 徒歩7分
西武新宿線西武新宿」 徒歩8分
竣工 1983年01月 構造 SRC
規模 地上9階, 地下0階 耐震基準 新耐震基準
床構造 - 空調設備 個別空調
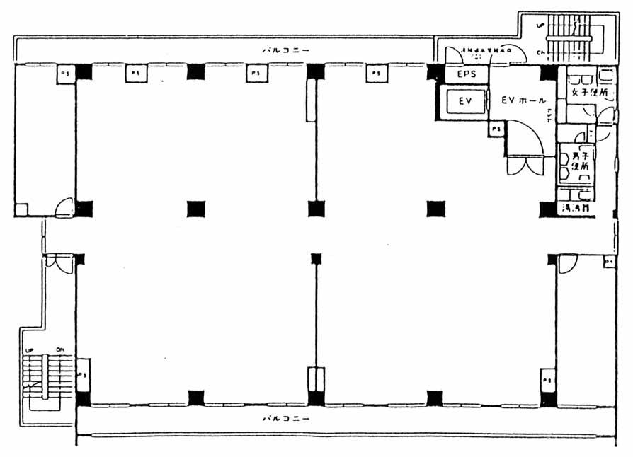
天井高 2400mm 基準階面積 132.01坪(436.4m2)
コンセント容量 - 施工会社

最新の募集状況や類似物件については、
こちらにお問い合わせください。

東信西新宿ビル 外観

外観

内見やお見積りなどの各種お問い合わせ

全物件
仲介手数料無料
仲介から
入居工事まで
ワンストップで対応
経験豊富なスタッフが
スピード感をもって
対応

周辺での似た条件の物件

非公開物件 多数あり!

お問い合わせフォーム