takeofficeなら掲載物件の仲介手数料は無料です

中島ビル

住所 東京都新宿区北新宿1-8-1
交通 JR総武本線大久保」 徒歩3分
JR山手線新大久保」 徒歩6分
竣工 1975年03月 構造 SRC
規模 地上9階, 地下1階 耐震基準 旧耐震基準
床構造 フリーアクセス 空調設備 個別空調
天井高 2460mm 基準階面積 148.81坪(491.93m2)
コンセント容量 - 施工会社

最新の募集状況や類似物件については、
こちらにお問い合わせください。

中島ビル 外観

外観

  • NOW PRINTING

    エントランス

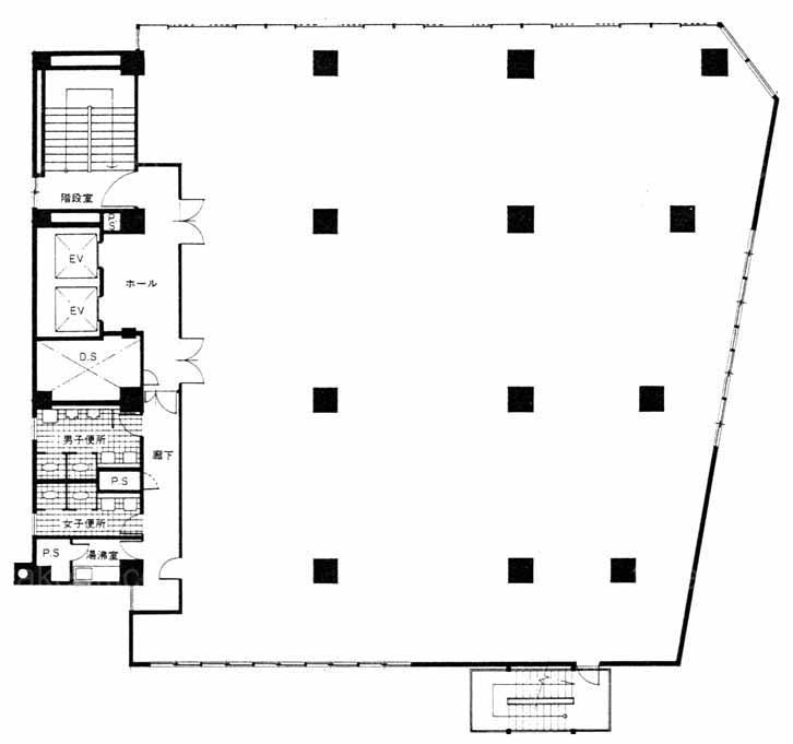
  • 基準階(2~3F)

    基準階(2~3F)

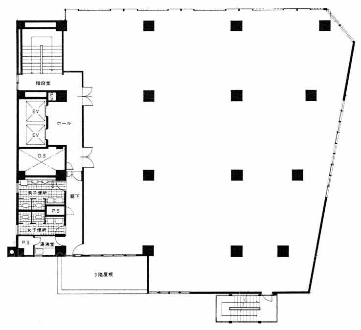
  • 4~6F

    4~6F

内見やお見積りなどの各種お問い合わせ

全物件
仲介手数料無料
仲介から
入居工事まで
ワンストップで対応
経験豊富なスタッフが
スピード感をもって
対応

周辺での似た条件の物件

非公開物件 多数あり!

お問い合わせフォーム