takeofficeなら掲載物件の仲介手数料は無料です

大東ビル

住所 東京都新宿区大久保1-11-3
交通 都営大江戸線東新宿」 徒歩4分
西武新宿線西武新宿」 徒歩8分
JR山手線新大久保」 徒歩9分
竣工 1984年08月 構造 RC
規模 地上6階, 地下2階 耐震基準 新耐震基準
床構造 - 空調設備 セントラル空調
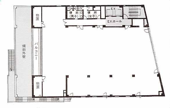
天井高 - 基準階面積 105坪(347m2)
コンセント容量 - 施工会社

最新の募集状況や類似物件については、
こちらにお問い合わせください。

大東ビル 外観

外観

  • NOW PRINTING

    エントランス

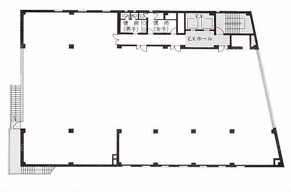
  • 2F

    2F

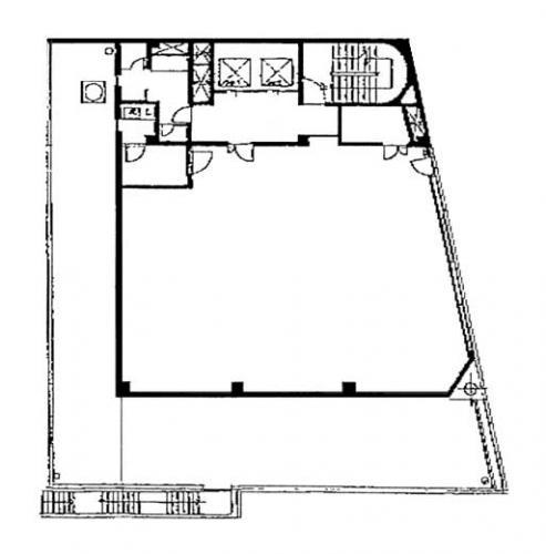
  • 1F

    1F

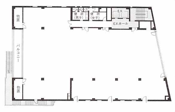
  • 3F

    3F

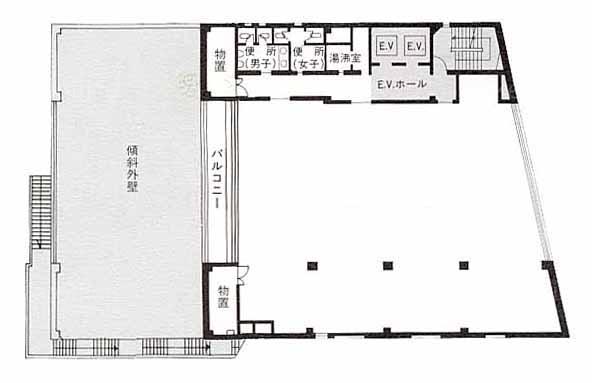
  • 4F

    4F

  • 5F

    5F

  • 6F

    6F

内見やお見積りなどの各種お問い合わせ

全物件
仲介手数料無料
仲介から
入居工事まで
ワンストップで対応
経験豊富なスタッフが
スピード感をもって
対応

周辺での似た条件の物件

非公開物件 多数あり!

お問い合わせフォーム