takeofficeなら掲載物件の仲介手数料は無料です

プラザ新大樹ビル

住所 東京都新宿区大久保2-1-8
交通 東京メトロ副都心線東新宿」 徒歩1分
JR山手線新大久保」 徒歩8分
西武新宿線西武新宿」 徒歩10分
竣工 1971年12月 構造 SRC
規模 地上14階, 地下1階 耐震基準 旧耐震基準
床構造 フリーアクセス 空調設備 個別空調
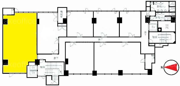
天井高 2550mm 基準階面積 155坪(515m2)
コンセント容量 - 施工会社

最新の募集状況や類似物件については、
こちらにお問い合わせください。

プラザ新大樹ビル 外観

外観

  • NOW PRINTING

    エントランス

内見やお見積りなどの各種お問い合わせ

全物件
仲介手数料無料
仲介から
入居工事まで
ワンストップで対応
経験豊富なスタッフが
スピード感をもって
対応

※「ご相談」と記載されている項目について
賃貸人が募集賃料条件を守秘義務の関係から明示していない場合に、【ご相談】と記載しております。
フリーレント(賃料免除)期間、使用面積、入居時期、テナント様の与信などによりご提示できる条件が若干変化いたします。
お手数ですが、詳細につきましては、上記よりお問い合わせください。

周辺での似た条件の物件

非公開物件 多数あり!

お問い合わせフォーム