takeofficeなら掲載物件の仲介手数料は無料です

新宿御苑室町ビル(旧:さくら四ツ谷ビル)

住所 東京都新宿区新宿1-8-5
交通 東京メトロ丸ノ内線新宿御苑前」 徒歩1分
竣工 1985年09月 構造 SRC
規模 地上8階, 地下1階 耐震基準 新耐震基準
床構造 フリーアクセス 空調設備 個別空調
天井高 2500mm 基準階面積 176.6坪(583.8m2)
コンセント容量 - 施工会社

最新の募集状況や類似物件については、
こちらにお問い合わせください。

新宿御苑室町ビル(旧:さくら四ツ谷ビル) 外観

外観

  • 新宿御苑室町ビル(旧:さくら四ツ谷ビル) エントランス写真

    エントランス

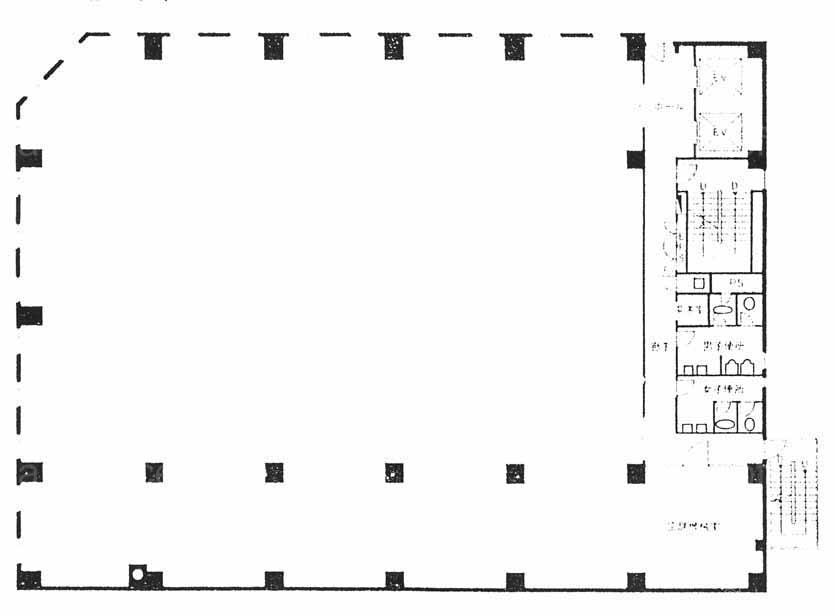
  • 基準階(3~8F)

    基準階(3~8F)

  • 1F

    1F

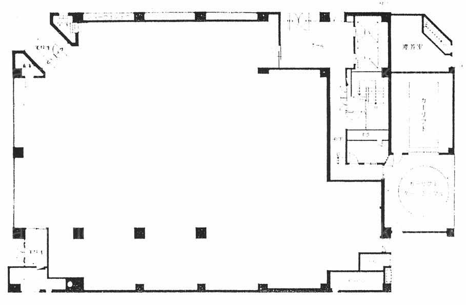
  • 2F

    2F

内見やお見積りなどの各種お問い合わせ

全物件
仲介手数料無料
仲介から
入居工事まで
ワンストップで対応
経験豊富なスタッフが
スピード感をもって
対応

周辺での似た条件の物件

非公開物件 多数あり!

お問い合わせフォーム